top of page
PETER RAFALIK
HOME
ARCHITECTURE
CHILD CARE CENTER
FIRE STATION TI
BOYS GIRLS CLUB
SAN DIEGO STATE
CALABASAS RESIDENCE
SAND CITY HOTEL
BMW Showroom
HISTORICAL MASTERPLAN
SET DESIGN & OTHER PROJECTS
ADDITIONAL WORKS
Figure Drawing
Logo & Poster Design
Painting & Process
Other Projects
General Photography
Artchitectural Photography
Boston Architectural College
ABOUT
RESUME
More
Use tab to navigate through the menu items.
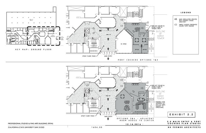
SAN DIEGO STATE university
space planning beginnings
RETURN TO MAIN PROJECT PAGE
report SCHEMATICS
SEE DEVELOPED DESIGN OPORTUNITIES
bottom of page